Автотопливозаправщик ПК Автомаш АТЗ-10,5 (10500 л) на шасси КАМАЗ 53605 (ЕВРО 5) новый
Свяжитесь с нами для получения консультации:
8 (800) 200-52-51.
Получите консультацию менеджера и КП*
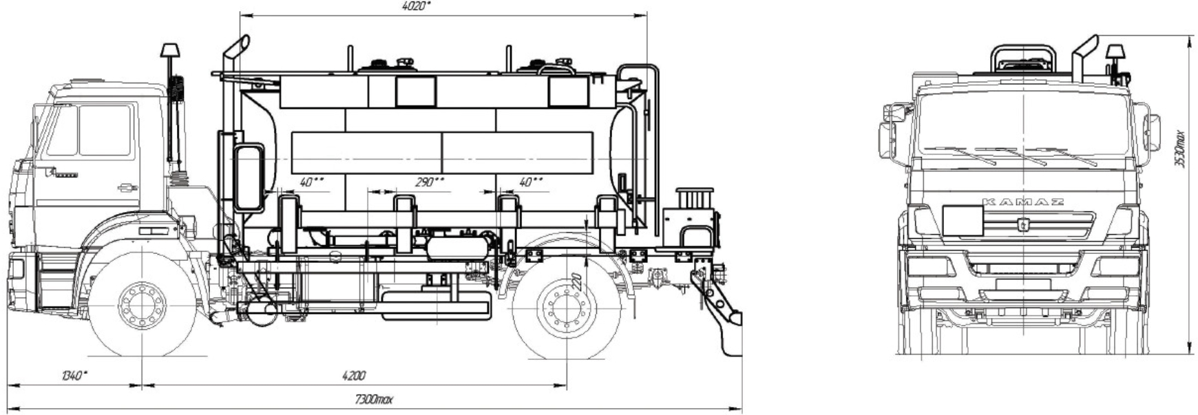
Схема размеров автотопливозаправщика ПК Автомаш АТЗ-10,5 (10500 л) на шасси КАМАЗ 53605:

Технические характеристики:
Модель
- Базовое шасси: КАМАЗ 53605
- Колесная формула: 4х2
- Двигатель: Cummins 6 ISBe5 300 (Eвро 5)
- КПП: ZF 9S1310TO или КАМАЗ 154
- Спальное место: нет
Весовые параметры и нагрузки
- Массовые показатели при плотности, т/м3: 0,86
- Полная масса а/м, кг: 18100
- на заднюю ось, кг: 10800
- на переднюю ось, кг: 7300 - Снаряженная масса, кг: 8970
Цистерна
- Вместимость цистерны, л: 10500
- Поперечное сечение: чемоданного типа
- Материал: сталь 09Г2С
- Количество отсеков: 2
- Экологический короб: Да
- Насос: 500 л/мин
- Высота самовсасывания, м: 3,5
- Привод: от коробки отбора мощности
- Налив цистерны: верхний и нижний
- Устройство дыхательное: с огнепреградителем на каждый отсек
- Фильтры грубой и тонкой очистки
Базовая комплектация
- Диаметр заливного лючка, мм: 250
- Алюминиевые крышки горловин
- Дыхательный клапан на каждый отсек
- Защита верхнего оборудования
- Алюминиевая площадка обслуживания из просечного листа
- Донные клапаны
- Блок пневмоуправления донными клапанами
- Шаровые краны
- Быстроразъемные соединения
- Напорно-всасывающие рукава
- Пластиковые пеналы для напорно-всасывающих рукавов
- 2 огнетушителя
- Пластиковые контейнеры для огнетушите
- Ящик для песка
- Знак аварийной установки, знак опасного груза, проблесковые маячки, светоотражающее оборудование
- Цепь и трос заземления
- Пластиковые противооткатные упоры
- Раздаточный рукав, раздаточный кран, счетчик
Колесная формула: 4х2
Двигатель: ЯМЗ 53653.10 или WP7.300E51
Коробка передач: ZF 9S1310TO или Fast Gear 9JS135TA
Объем цистерны, л: 10500
Количество отсеков: 1-3
Поперечное сечение: чемоданного типа
Колесная формула: 4х2
Двигатель: ЯМЗ-53653.10 или WP7.300E51
Коробка передач: ZF 9S1310TO или Fast Gear 9JS135TA
Объем цистерны, л: 11000
Количество отсеков: 1-3
Поперечное сечение: чемоданнного типа
Колесная формула: 6х4
Двигатель: Cummins ISB6.7E5 300 (КАМАЗ 667.511-300) или КАМАЗ-740.705-300
Коробка передач: ZF 9S1310TO или КАМАЗ 154
Объем цистерны, л: 11000
Количество отсеков: 1-4
Поперечное сечение: чемоданного типа
Свяжитесь с нами для получения консультации: 8 (800) 200-52-51.
Колесная формула: 4х2
Двигатель: Cummins 6 ISBe5 300
Коробка передач: ZF 9S1310TO или КАМАЗ 154
Объем цистерны, л: 10500
Количество отсеков: 1-3
Поперечное сечение: овал











